Un loft à rénover au sein d’une ancienne coopérative de lait à Ivry-sur-seine
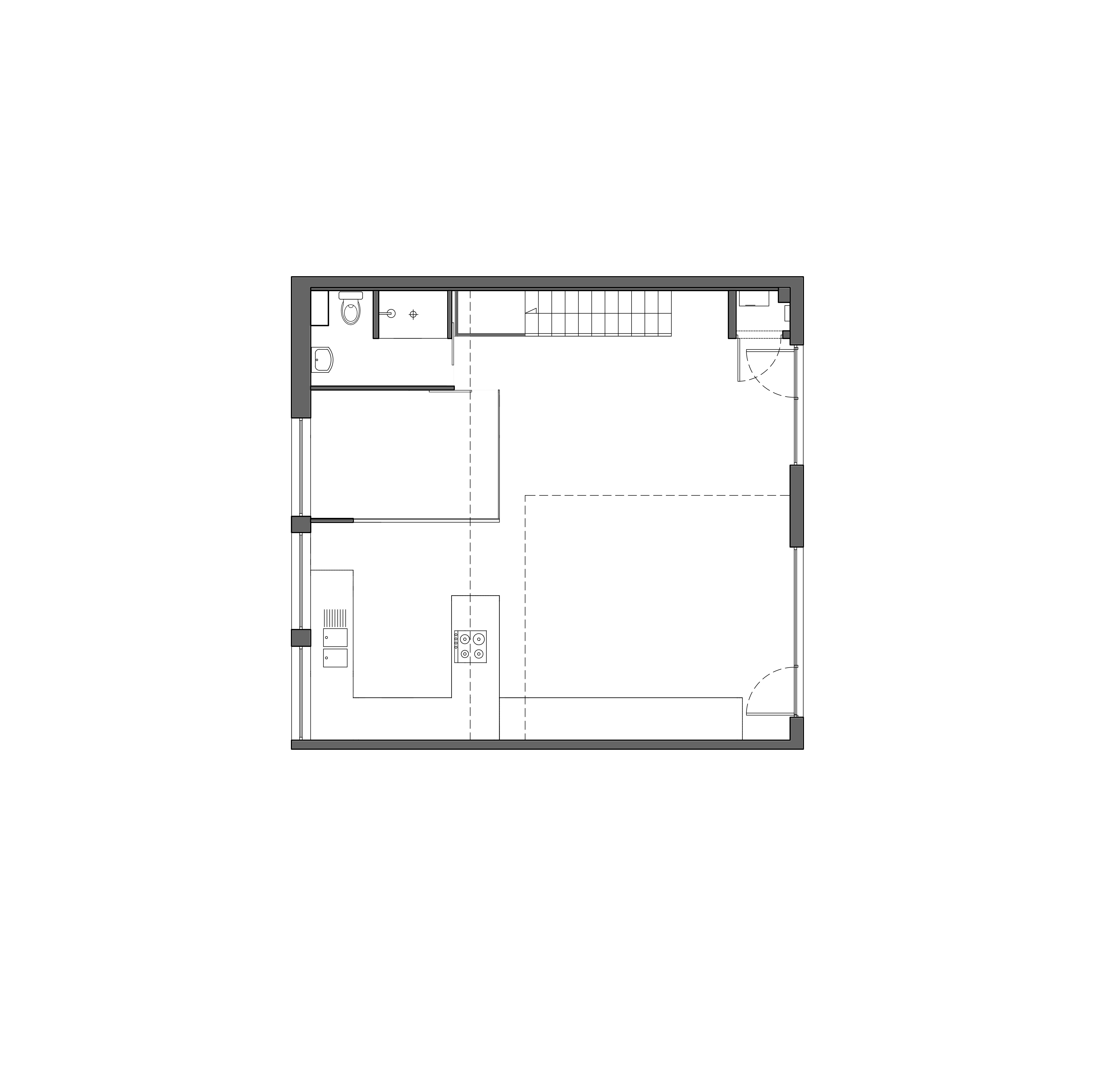
Ce loft de 120m² est situé au sein des bâtiments de l’ancienne coopérative de lait d’Ivry-sur-Seine. Réhabilité en 2001, le site abrite aujourd’hui lofts et ateliers d’artistes dans un univers industriel où la nature prolifère à nouveau. Une atmosphère calme et bucolique que notre client a choisie pour poser ses valises. Le loft, à la façade entièrement vitrée, s’étend sur deux étages. Il avait besoin d’un rafraîchissement pour accueillir son nouveau propriétaire et ses multiples œuvres d’art.










